Rif: K17
CUNARDO
VARESE
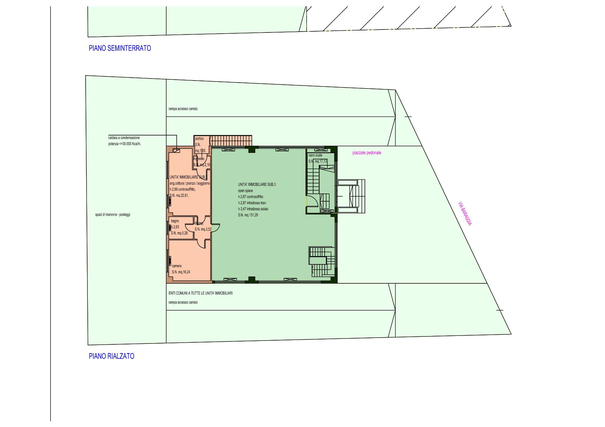
L'edificio proposto in vendita si sviluppa su tre livelli: Piano terra adibito a magazzino, spogliatoi/wc, un piano primo ed un secondo. Ogni piano ha una superficie di 230 metri quadri.
Al piano primo troviamo un appartamento bilocale di 60 metri quadri completo di cucina oltre ad un grande locale open space con servizi igienici che conta ulteriori 170 m2 per un totale superficie di 230 m2.
Al piano secondo si ripropone il locale unico di 230 m2 con bagno. Tutte le pareti divisorie sono in cartongesso risultando facilmente amovibili.
L'edificio commerciale/artigianale proposto in vendita si presta a molteplici utilizzi, sia quindi per scopi commerciali che artigianali. Il punto di forza è la sua vicinanza alla strada provinciale, che consente l'accesso anche a mezzi pesanti.
All'esterno è presente un ampio parcheggio con doppio ingresso proprio per agevolare l'entrata e l'uscita di auto o mezzi.
Il riscaldamento è autonomo con un'unica centrale termica che divide l'erogazione di calore separatamente per ciascun piano. Mentre l'appartamento residenziale dispone di una sua personale caldaia indipendente.
Per qualsiasi informazione aggiuntiva o per fissare un appuntamento sul posto, contattare direttamente il consulente immobiliare al numero 333/8133788.
We offer for sale a commercial/artisan building developed over three levels, ideal for multiple uses — both commercial and industrial.
The ground floor includes a large warehouse area, changing rooms, and restrooms.
The first floor features a two-room apartment of approximately 60 sqm, complete with a kitchen, as well as a large open-space area with restrooms measuring about 170 sqm, for a total surface of 230 sqm.
The second floor consists of another open-space area of 230 sqm with bathroom facilities.
All internal partition walls are made of drywall, making them easily removable and allowing flexible layout customization.
The property enjoys an excellent location near big road, allowing easy access for heavy vehicles. Outside, there is a large parking area with a double entrance, facilitating the entry and exit of cars or trucks.
Heating is independent, managed by a single central system that distributes heat separately to each floor, while the residential apartment is equipped with its own independent boiler.
For further information or to schedule a visit, please contact the real estate consultant directly at +39 333 813 3788.
Al piano primo troviamo un appartamento bilocale di 60 metri quadri completo di cucina oltre ad un grande locale open space con servizi igienici che conta ulteriori 170 m2 per un totale superficie di 230 m2.
Al piano secondo si ripropone il locale unico di 230 m2 con bagno. Tutte le pareti divisorie sono in cartongesso risultando facilmente amovibili.
L'edificio commerciale/artigianale proposto in vendita si presta a molteplici utilizzi, sia quindi per scopi commerciali che artigianali. Il punto di forza è la sua vicinanza alla strada provinciale, che consente l'accesso anche a mezzi pesanti.
All'esterno è presente un ampio parcheggio con doppio ingresso proprio per agevolare l'entrata e l'uscita di auto o mezzi.
Il riscaldamento è autonomo con un'unica centrale termica che divide l'erogazione di calore separatamente per ciascun piano. Mentre l'appartamento residenziale dispone di una sua personale caldaia indipendente.
Per qualsiasi informazione aggiuntiva o per fissare un appuntamento sul posto, contattare direttamente il consulente immobiliare al numero 333/8133788.
We offer for sale a commercial/artisan building developed over three levels, ideal for multiple uses — both commercial and industrial.
The ground floor includes a large warehouse area, changing rooms, and restrooms.
The first floor features a two-room apartment of approximately 60 sqm, complete with a kitchen, as well as a large open-space area with restrooms measuring about 170 sqm, for a total surface of 230 sqm.
The second floor consists of another open-space area of 230 sqm with bathroom facilities.
All internal partition walls are made of drywall, making them easily removable and allowing flexible layout customization.
The property enjoys an excellent location near big road, allowing easy access for heavy vehicles. Outside, there is a large parking area with a double entrance, facilitating the entry and exit of cars or trucks.
Heating is independent, managed by a single central system that distributes heat separately to each floor, while the residential apartment is equipped with its own independent boiler.
For further information or to schedule a visit, please contact the real estate consultant directly at +39 333 813 3788.
Consistenze
| Descrizione | Superficie | Sup. comm. |
|---|---|---|
| Principali | ||
| Magazzino - piano rialzato | 230 Mq | 230 Mqc |
| Ufficio - 1° piano | 170 Mq | 170 Mqc |
| Ufficio - 1° piano | 60 Mq | 60 Mqc |
| Ufficio - 2° piano | 230 Mq | 230 Mqc |
| Giardino/Resede | 800 Mq | 80 Mqc |
| Totale | 770 Mqc | |






